会議室
各会議室の概要
会議室1、会議室2
※会議室1、2は同じ広さ、仕様です。
様々な会議に使用できる会議室です。
| 広さ | 80.73㎡ |
|---|---|
| 収容人数 | 51人 |
| 机 | 12台 |
| 椅子 | 36脚 |
| 使用可能な備品 | 有線マイク、ワイヤレスマイク、ワゴンアンプ、パソコンプロジェクター、可動スクリーン、ホワイトボード |
※机と椅子の数は、貸出時のものです。備品倉庫から追加・収納ができます。
会議室3
| 広さ | 117.72㎡ |
|---|---|
| 収容人数 | 87人 |
| 机 | 14台 |
| 椅子 | 42脚 |
| 使用可能な備品 | 有線マイク、ワイヤレスマイク、ワゴンアンプ、パソコンプロジェクター、ビデオプロジェクター、固定スクリーン、ホワイトボード |
※机と椅子の数は、貸出時のものです。備品倉庫から追加・収納ができます。
控室
会議室1~3
用途に応じて繋げて使うことができます。
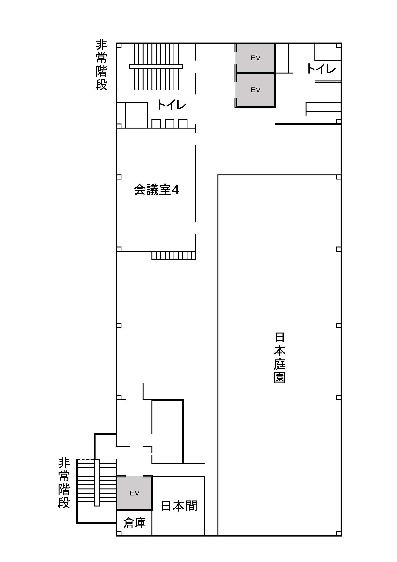
会議室4
ハイグレードな会議に対応した会議室です
| 広さ | 79.18㎡ |
|---|---|
| 収容人数 | 20人 |
| 机 | 1台(連結式) |
| 椅子 | 20脚 |
| 使用可能な備品 | 有線マイク、ワイヤレスマイク、ワゴンアンプ、パソコンプロジェクター、固定スクリーン、ホワイトボード |
日本間
お稽古事や会議に使用できる日本間です
| 広さ | 25.82㎡ |
|---|---|
| 収容人数 | 15畳 |
| 机 | 座卓あり |
| 椅子 | 座布団あり |
| 使用可能な備品 | なし |
附属設備紹介
| 写真 | 附属設備名 | 説明 | 利用料金 (1回に付き) |
|---|---|---|---|
![]() |
マイク(有線) | アンプ1台につき1本までご利用になれます 最大8mまで延長可能です |
770円 |
![]() |
ワイヤレスマイク | アンプ1台につき2本までご利用になれます | 1,100円 |
![]() |
パソコンプロジェクター | お持ち込みのパソコンと繋げてご利用になれます 接続コード種類 ・HDMIケーブル:最大5m ・USBケーブル:最大7m ・VGAケーブル:最大10m |
2,200円 |
![]() |
ビデオプロジェクター | アンプDVD/CDプレイヤーです。 ワゴンアンプと接続することで、映像と音声の再生が可能です。 |
2,200円 |
![]() |
ワゴンアンプ | 有線マイク、ワイヤレスマイク、ビデオプロジェ クターをご利用の際に必要となります |
2,200円 |
![]() |
スクリーン (備え付け) |
会議室3と会議室4に備え付けております | 無料 |
![]() |
スクリーン (自立式) |
日本間以外の会議室でご利用になれます | 無料 |
| マイクスタンド | ストレートタイプと卓上のものがございます | 無料 | |
| その他 | ホワイトボード(マーカー付き)、延長コード、 演台、司会台、ステージなどもご利用になれます |
無料 |
料金案内
部屋 |
午前 |
午後 |
夜間 |
全日 |
階 |
面積 |
収容人数 |
|---|---|---|---|---|---|---|---|
| 会議室1 | 1,320円 | 1,760円 | 1,760円 | 4,110円 | 3階 | 80.73㎡ | ※51名 |
| 会議室2 | 1,320円 | 1,760円 | 1,760円 | 4,110円 | 3階 | 80.73㎡ | ※51名 |
| 会議室3 | 1,980円 | 2,640円 | 2,640円 | 6,170円 | 3階 | 117.72㎡ | ※87名 |
| 会議室4 | 2,310円 | 3,080円 | 3,080円 | 7,190円 | 5階 | 79.18㎡ | 20名 |
| 日本間 | 1,320円 | 1,760円 | 1,760円 | 4,110円 | 5階 | 25.82㎡ | 7名 | 15畳 |
【3階の会議室を繋げて利用する場合】各部屋の可動式のパーテーションで仕切られています |
|||||||
|---|---|---|---|---|---|---|---|
| 会議室1・2 | 2,640円 | 3,520円 | 3,520円 | 8,220円 | 3階 | 161.46㎡ | ※108名 |
| 会議室2・3 | 3,300円 | 4,400円 | 4,400円 | 10,280円 | 3階 | 198.45㎡ | ※138名 |
| 会議室1・2・3 | 4,620円 | 6,160円 | 6,160円 | 14,300円 | 3階 | 279.18㎡ | ※198名 |
※スクール形式(机に3人掛け)の場合の最大収容人数









